

18 Timins Street, Sunbury VIC 3429
House
3 Beds
3 Baths
2 Garage
855m2
Currently Closed
The agent hasn't enabled live bidding yet. Be first to know when it opens.
Skip the market
Enter your offer for immediate review. Successful bids can settle in 14 days.
No Clauses Required
Property Highlights
Local performance data and area demographics updated in real-time.
Growth Zone
12.4% Annual appreciation
Top Schools
Tier 1 Primary Zone
Exclusive Benefits
Available to customers who purchase through the Wurley ecosystem.
$200 Discount
Conveyancing Fees
$1,000 Cash
Wurley Loan Bonus
Exclusive Benefits
Available to customers who purchase through the Wurley ecosystem.
$200 Discount
Conveyancing Fees
$1,000 Cash
Wurley Loan Bonus
Skip the market
Enter your offer for immediate review. Successful bids can settle in 14 days.
No Clauses Required
Currently Closed
The agent hasn't enabled live bidding yet. Be first to know when it opens.
Property Highlights
Local performance data and area demographics updated in real-time.
Growth Zone
12.4% Annual appreciation
Top Schools
Tier 1 Primary Zone
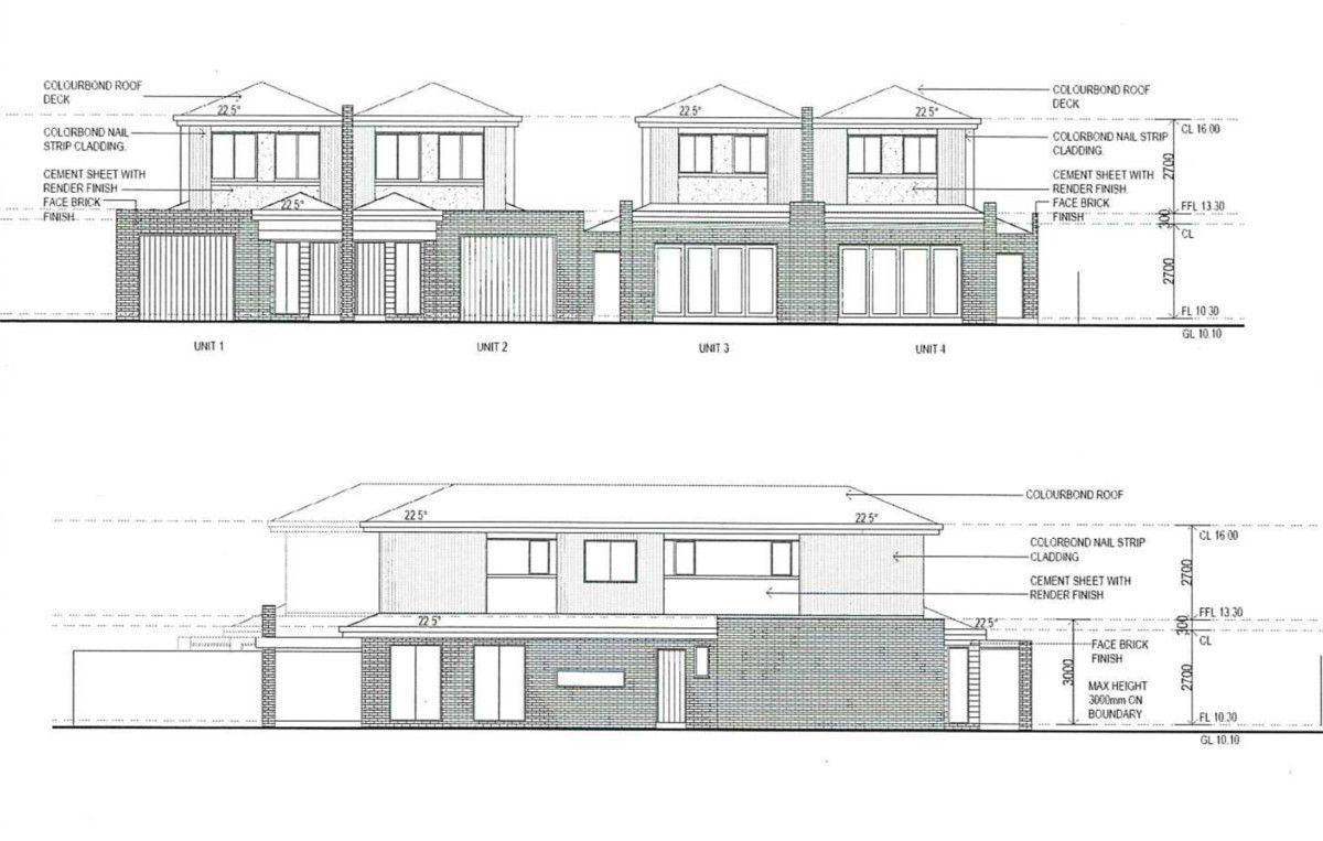
This marvellous 855 square metre (approximately) parcel of land, includes an approved planning permit for 4 new stunning, STREET frontage double storey dwellings., , With 2 of the new proposed dwellings facing Timins Street and the other 2 new proposed dwellings fronting Shields Street, this development site offers a remarkable opportunity., , Each of the 4 new proposed dwellings includes 3 bedrooms, 3 bathrooms and a lock up garage., , Located within easy reach of the amenities that continue to make Sunbury so appealing to investors and home buyers alike., , If you've been looking for your next profitable project, to either build and sell, or build and lease out, you've just found it! , , Detailed plans & elevations available upon request
Loading...
855 m2
-- m2
2
3
* Disclaimer: This property is a third-party listing. All information provided is sourced externally and meant for your convenience.
Find out how much money you need to own a property
In case of any inquiry, please fill out the contact form and reach to you. We will get back to you shortly.
Explore specialised services to help you settle in.